CONVERSATION

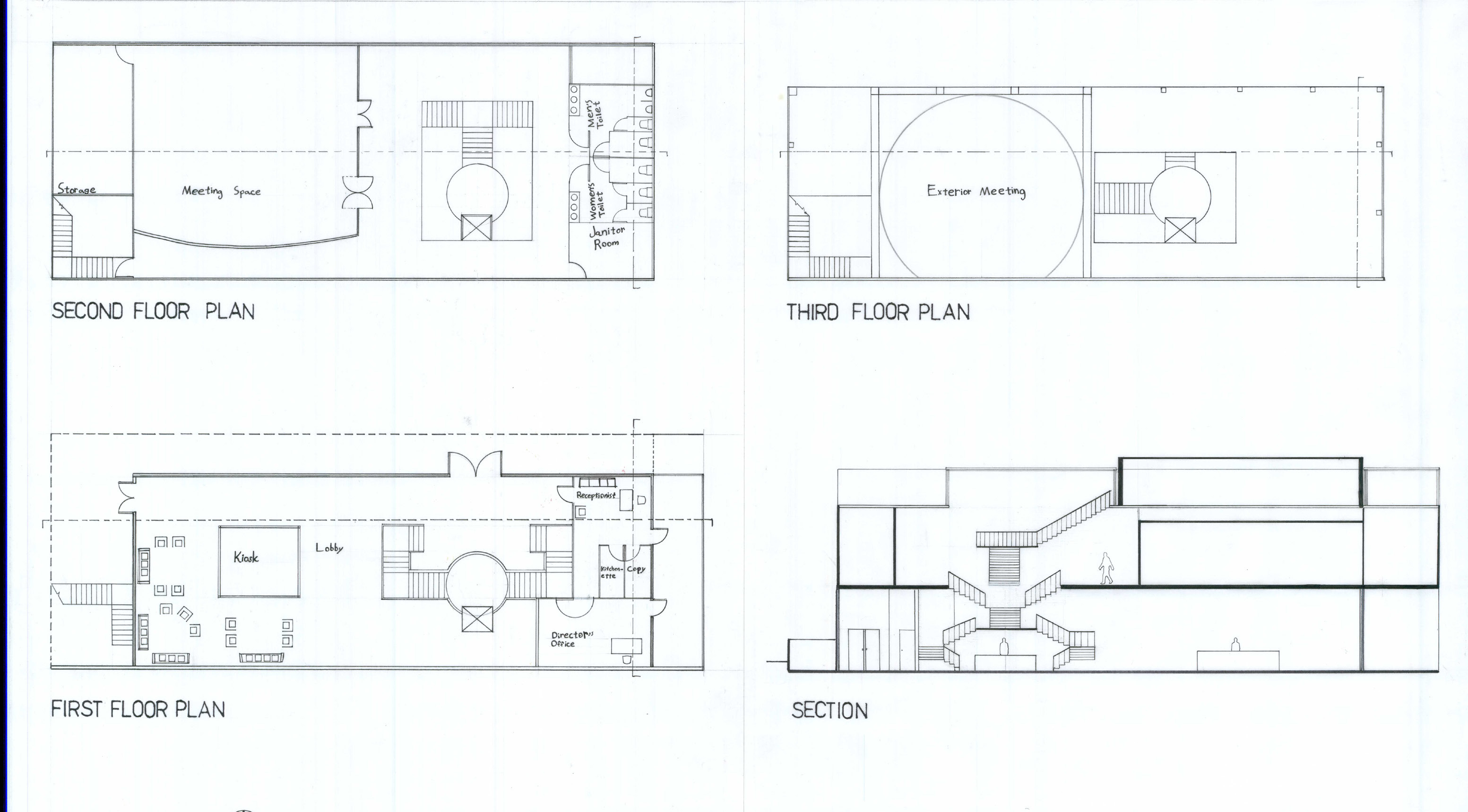
This is a project is located downtown Springfield. I created a conversation space that will block the sound and lets wind inside. In this project I made steal panels on the side of the building that has an open area inside it for let the wind inside. I wanted an open space, and I wanted the people to feel they are in a welcoming environment so I made glass windows in one side of the facade. The glass windows allows the people in the conversation space to look out without hearing space. I wanted to create the idea of exterior and interior combining.





